Back to Projects

Residence Alberta

USA2024Revit
Residence Alberta
Click to view

About the Project

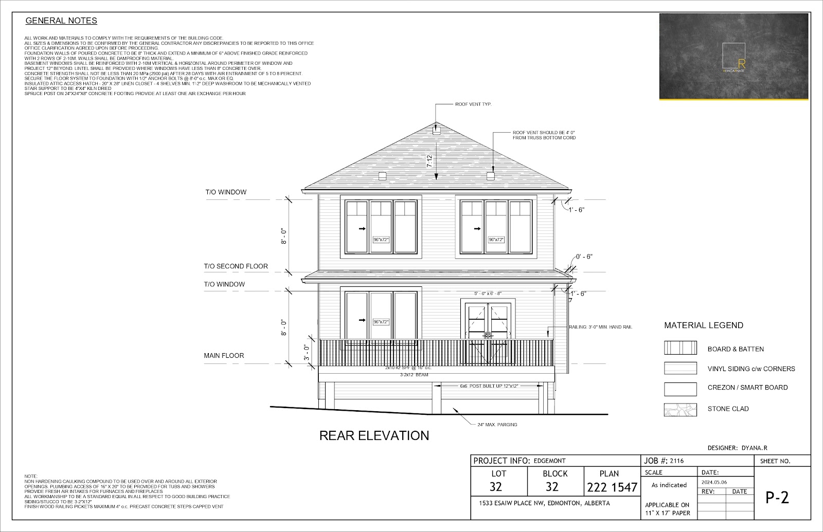
This residential project is designed using Revit software to ensure precision and efficiency in architectural documentation and visualization. The project focuses on a single-family detached home located in Edmonton, Alberta.

The design adheres to local building codes and incorporates modern architectural features such as a double-story layout, attached garage, and outdoor deck. The plans include detailed elevations, floor layouts, and site planning, ensuring compliance with zoning regulations and optimizing site coverage.

The purpose of this project is to create a functional and aesthetically pleasing residential space tailored to meet the client’s needs. The design emphasizes spatial efficiency, sustainability, and comfort while incorporating essential features like a great room, open dining space, and a den for flexibility.

The Revit model enables seamless collaboration among architects, engineers, and contractors, ensuring an error-free and efficient construction process. The detailed documentation aims to facilitate a smooth approval process for permits and ensure the accurate execution of the design.

Project Details

Client
Studio Ardete
Area
442.95 sq m
Status
Under construction
Source
Instagram

Project Gallery

Sheet 1
View Image
Sheet 2
View Image
Sheet 3
View Image
Sheet 4
View Image
Sheet 5
View Image
Sheet 6
View Image

Sheet 7

View Image

Sheet 8

View Image
Sheet 9
View Image
Sheet 10
View Image
Sheet 11
View Image

Related Projects

Residence Montana

Residence Montana

USA